Listing provided courtesy of Kimberly Brown of Galles Properties. Last updated 2023-08-27 11:00:08.000000. Listing information © 2026 .
Asking Price: $1,175,000
1806 Loma Linda, Pagosa Springs CO 81147
Community:
This property was built in 2003 and is priced at $1,175,000. Please see the additional details below.
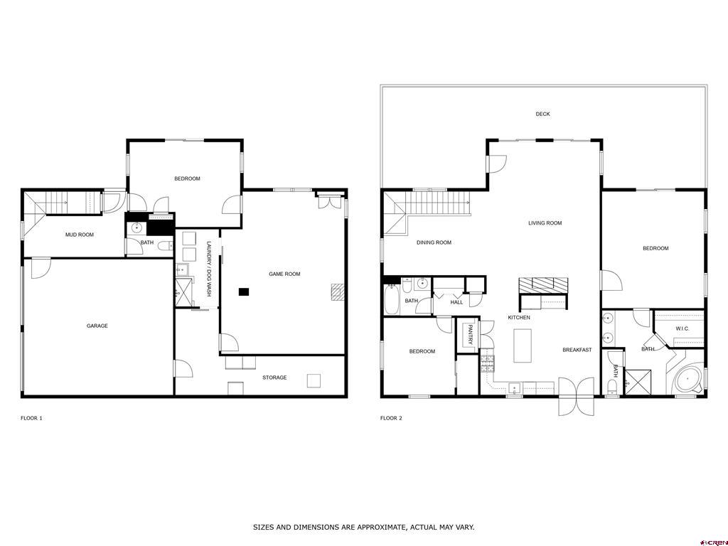
Quite possibly the perfect Pagosa Springs escape! Iconic meets modern mountain in this 3500 SF 3 Bedroom, 2 1/2 Bath cabin with a fenced loafing shed on 5 gorgeous Acres (with option as 10 Acres). This natural light filled sweet retreat is backed by Ponderosa Pines, Gamble Oak and Evergreens with sprawling covered and open decks, mesmerizing views, private National Forest access, and is only minutes to historic downtown Pagosa. New solar installed, custom stamped concrete entrance, and a rustic modern mountain finished basement with gas stove, ideal to enjoy as a Media/Game Room and so much more. Large laundry with doggie bath plus wine area and extra storage. Spacious primary bedroom with private deck access and bath with walk in closet, shower, and tub. Curl up beside the natural stone fireplace beneath the soaring vaulted ceiling of the timber framed great room or retreat with a good book in the cozy nook. One main floor guest room with bath and one lower level guest room/office with powder room is ideal for everyone to have their own space and privacy while under one roof. Well designed kitchen with large pantry and french door deck access. Oversized 2 Car Garage to hold all the fun stuff! The roads here are year round maintained, you can ride your snowmobiles and ATV's from your home right into the forest. Serviced by central water. Pagosa is home to the world's deepest Hot Springs, Wolf Creek Ski Area, multiple fish stocked live waters and lakes, plus over 2.5 million acres of National Forest and wilderness land. Believe it or not...We enjoy over 300 days of sun each year too! How do you like them apples? Schedule to see this awesome property for yourself, it's the storybook life in the mountains.






































